Trilocale in vendita

Casatenovo, Via Michelangelo Buonarroti
€ 258.000
3 locali 3 locali
110 Mq 110 Mq
2 bagni 2 bagni

Trilocale in vendita

Casatenovo, Via Michelangelo Buonarroti

Descrizione annuncio

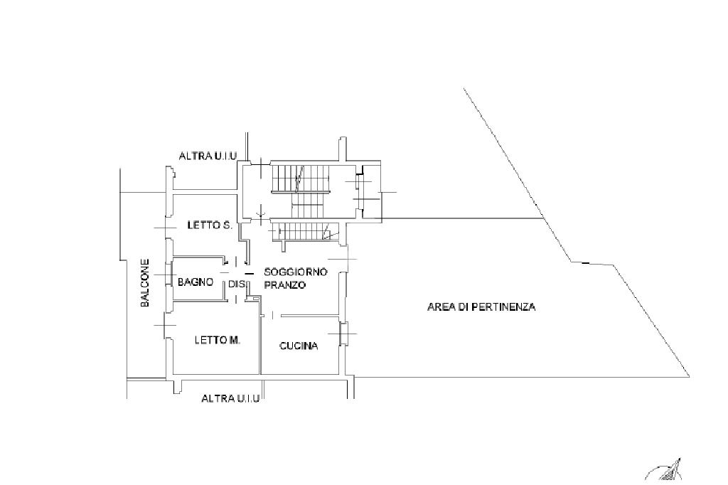
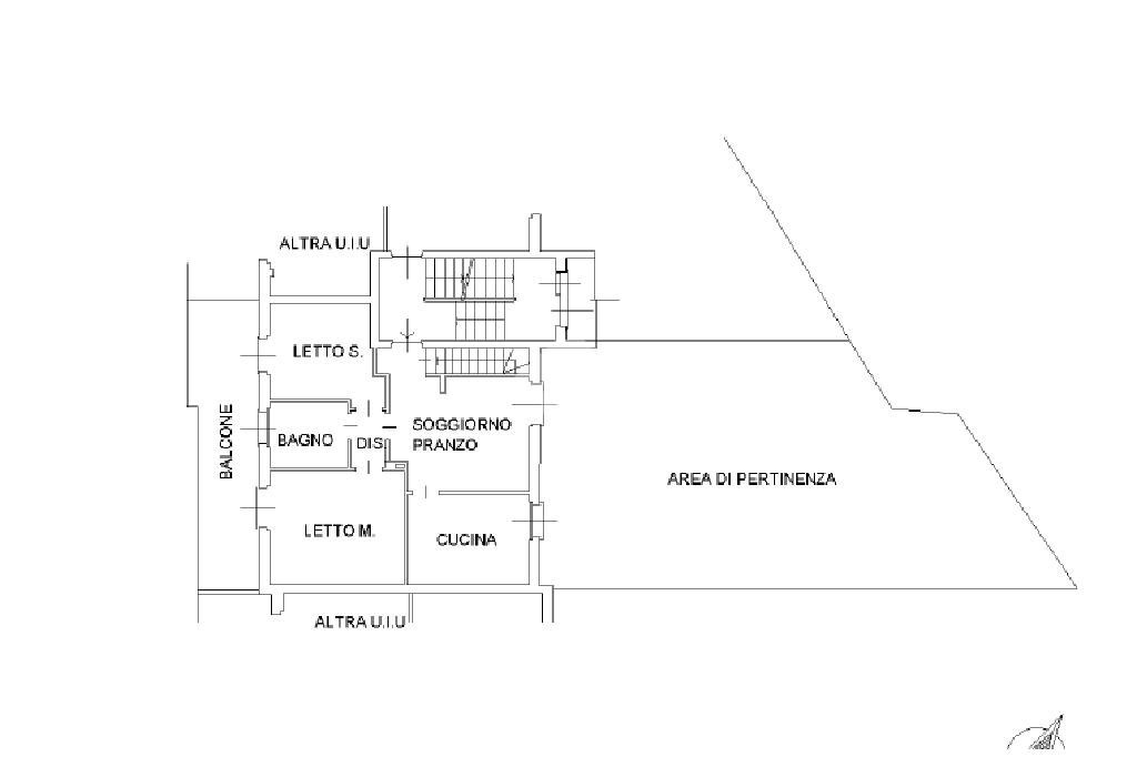
Nel comune di Casatenovo, in zona centrale, proponiamo in vendita un trilocale di 110mq al piano terra con giardino.

L'ingresso si apre sulla zona giorno, composta da soggiorno e cucina abitabile.

Tramite il disimpegno si accede alle altre stanze che compongono l'appartamento: un servizio finestrato, una camera matrimoniale ed una cameretta. La zona notte è servita da un terrazzo.

La proprietà include un giardino privato, perfetto per chi ama il verde e desidera uno spazio esterno da personalizzare.

Un ulteriore punto di forza è la taverna, che offre un ambiente versatile da utilizzare secondo le proprie esigenze, servita da un servizio finestrato.

L'abitazione comprende un box doppio in larghezza e una comoda cantina.

Le finiture sono in ceramica per la zona giorno, mentre abbiamo il parquet nella zona notte.

Il riscaldamento è a pavimento, i serramenti sono in legno doppio vetro, persiane in alluminio, antifurto e grate su tutte le finestre.

E' inoltre presente l'aria condizionata caldo/freddo nella zona giorno e notte.

Le spese condominiali sono di 2.200€ annui comprensive di tutti i consumi. (riscaldamento, acqua calda/fredda, ecc)

Questa soluzione abitativa rappresenta un'opportunità interessante per chi cerca comfort e funzionalità in una zona tranquilla e ben servita.

La nostra agenzia immobiliare si occupa di immobili in vendita e in affitto nel comune di Casatenovo, vicina a Monticello Brianza, Missaglia, Besana e Lesmo.

Offriamo a tutti i nostri clienti una prima consulenza creditizia, con possibilità di avere prodotti adatti alle vostre esigenze. Questa casa ti piace, ma ne hai una da vendere? Non preoccuparti! Contatta il nostro ufficio e ti spiegheremo come fare senza rischi.

Mostra tutto

Nelle vicinanze

Trasporto pubblico Trasporto pubblico
Besana
Besana
1,9 Km
Via Monte Grappa - Via Monteverdi (Monticello Brianza)
Via Monte Grappa - Via Monteverdi (Monticello Brianza)
720 m
Via Monte Gappa - Via Della Quercia (Monticello Brianza)
Via Monte Gappa - Via Della Quercia (Monticello Brianza)
1,1 Km
Ricariche auto elettriche Ricariche auto elettriche
Bennet Casatenovo | BECHARGE
160 m
Scuole Scuole
Scuole
380 m
Scuola elementare
420 m
IISS Alessandro Greppi
490 m
Istituto Graziella Fumagalli
620 m
Scuola Primaria Don Carlo Gnocchi
970 m
Farmacia Farmacia
Farmacia
480 m
Farmacia Consonni
1,3 Km
Farmacia Schiavi dottor Enos
2,3 Km
Farmacia Comunale
2,9 Km
Ospedali Ospedali
Ospedali
580 m
Supermercati Supermercati
Bennet
220 m
CONAD
590 m
LD Market Casatenovo
1,4 Km
MD
1,7 Km
Esselunga della Cascina Levada
1,9 Km
Negozi Negozi
Fantasie di pane
1,4 Km
Negozi
2,5 Km
Bar Bar
Bar Guzzetti
450 m
Bar Canarino
740 m
Bar Gelateria 5 Frecce
1,1 Km
Portici
1,4 Km
Pasticceria Gelateria Renzo
2,0 Km
Ristoranti Ristoranti
Hemingway
1,1 Km
Agriturismo Giovanna Passeri
1,2 Km
La Tavola di Cherubino
1,2 Km
Osteria del Bacco
1,2 Km
Osteria della Posa
1,5 Km
Mostra tutto

Caratteristiche

Rif.:
61125748
Piano:
Terra di 2
Totale piani:
2
Box:
1
Terrazzi:
1
Camere da letto:
2
Mostra tutto
Prezzo Prezzo
€ 258.000
Rata mutuo Rata mutuo
€ 1.217 / mese
Spese annue Spese annue
€ 2.200
Proponi il tuo prezzoProponi il tuo prezzo

Classe Energetica

A1
A1
A1
A1
A1
A1
A1
A1
A1
EP globale non rinnovabile:
85.74 kW h/m² anno
EP globale rinnovabile:
100.00 kW h/m² anno
EP invernale del fabbricato:
EP estiva del fabbricato:
Anno di costruzione:
2008
Riscaldamento:
Centralizzato
Tipo impianto:
A pavimento
Tipo alimentazione:
Metano

Ti interessa visionare l'immobile?

Fissa un appuntamento  Fissa un appuntamento

Richiedi informazioni

Clicca su Leggi per aprire l'informativa
* Questi campi sono obbligatori

Calcola il tuo mutuo

Semplice e senza impegno
Anticipo

( % )
Mutuo

( % )

pochi semplici passi

inserisci i tuoi dati
Questionario completato
Grazie per aver richiesto un appuntamento senza impegno con un nostro Consulente del Credito e Assicurativo.

Hai inserito correttamente tutti i dati necessari e a breve riceverai una e-mail con un link da convalidare per inviare i tuoi dati.
Affiliato
Ares Srl
Via Mameli, 2 23880 Casatenovo (LC)

Il nostro staff


  • Angelo Antonio Spreafico
    Affiliato

  • Alessia Campana
    Coordinatrice

  • Tatiana Mastrangelo
    Coordinatrice

  • Prisca Antonietta Pedulla'
    Collaboratrice
Via Mameli, 2 23880 Casatenovo (LC)
Zona: Casatenovo
Mostra su mappa
Orari: Lunedi-Venerdì 9.00-12.30 14.30-20.00 Sabato 9.00-12.30 14.30-17.30
Affiliato
Ares Srl
Via Mameli, 2 23880 Casatenovo (LC)

2025 Tecnocasa Franchising S.p.A. - P. IVA 08365160152 - Via Monte Bianco 60/A 20089 Rozzano (MI). Ogni agenzia ha un proprio titolare ed è autonoma. Privacy policy | Policy utilizzo | Cookie policy