Trilocale in vendita

Casatenovo, Via Giuseppe Garibaldi
€ 160.000
3 locali 3 locali
80 Mq 80 Mq
1 bagno 1 bagno

Trilocale in vendita

Casatenovo, Via Giuseppe Garibaldi

Descrizione annuncio

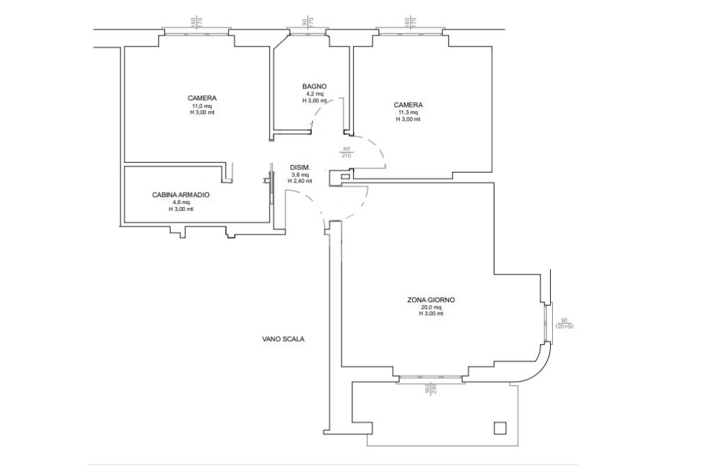
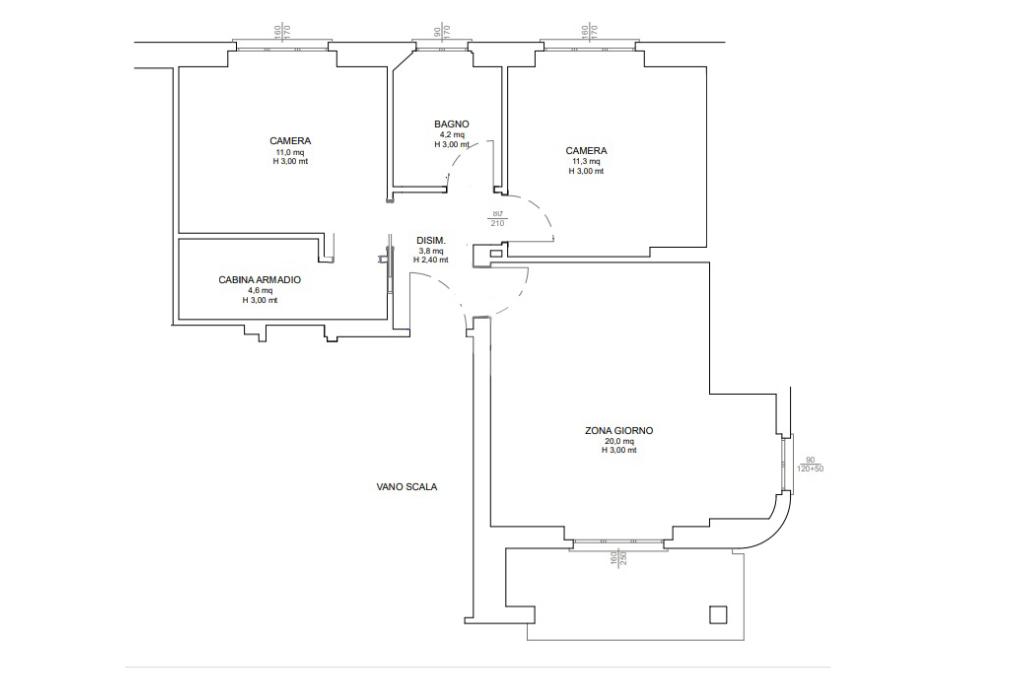
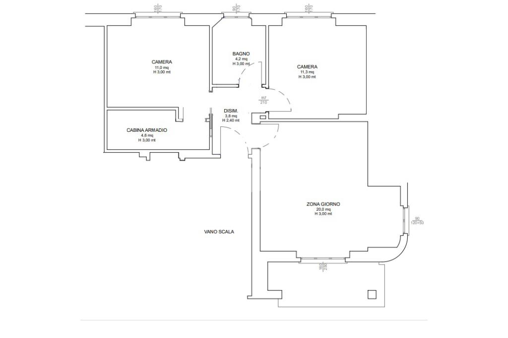
In zona centrale proponiamo in vendita un trilocale, completamente ristrutturato nel 2025, situato al secondo piano di una palazzina senza ascensore.

La zona giorno, servita da balcone, si compone di soggiorno con affaccio su cucina, creando un'area ampia e luminosa.

La zona notte, a cui si accede tramite un piccolo disimpegno, è composta da una camera matrimoniale, dotata di una pratica cabina armadio, che garantisce spazio e funzionalità, una cameretta ed un servizio finestrato.

Completano la proprietà un comodo posto auto coperto, che assicura protezione e praticità, ed una cantina.

I serramenti sono in doppio vetro pvc. Il riscaldamento è autonomo con pompa di calore caldo/freddo.

Questa soluzione abitativa rappresenta un'opportunità interessante per chi cerca comfort e comodità in una zona ben servita.

La nostra agenzia immobiliare si occupa di immobili in vendita e in affitto nel comune di Casatenovo, vicina a Monticello Brianza, Missaglia, Besana e Lesmo.

Offriamo a tutti i nostri clienti una prima consulenza creditizia, con possibilità di avere prodotti adatti alle vostre esigenze. Questa casa ti piace, ma ne hai una da vendere? Non preoccuparti! Contatta il nostro ufficio e ti spiegheremo come fare senza rischi.

Mostra tutto

Nelle vicinanze

Trasporto pubblico Trasporto pubblico
Besana
Besana
2,1 Km
Via Monte Grappa - Via Monteverdi (Monticello Brianza)
Via Monte Grappa - Via Monteverdi (Monticello Brianza)
720 m
Via Monte Gappa - Via Della Quercia (Monticello Brianza)
Via Monte Gappa - Via Della Quercia (Monticello Brianza)
910 m
Ricariche auto elettriche Ricariche auto elettriche
Bennet Casatenovo | BECHARGE
440 m
Scuole Scuole
Scuole
100 m
Scuola elementare
150 m
Istituto Graziella Fumagalli
340 m
IISS Alessandro Greppi
480 m
Scuola media statale "Maria Gaetana Agnesi"
920 m
Farmacia Farmacia
Farmacia
290 m
Farmacia Consonni
1,1 Km
Farmacia Schiavi dottor Enos
2,0 Km
Ospedali Ospedali
Ospedali
860 m
Supermercati Supermercati
CONAD
350 m
Bennet
490 m
LD Market Casatenovo
1,3 Km
Esselunga della Cascina Levada
1,9 Km
il Viaggiator Goloso
1,9 Km
Negozi Negozi
Fantasie di pane
1,6 Km
Negozi
2,3 Km
Bar Bar
Bar Guzzetti
160 m
Bar Canarino
590 m
Bar Gelateria 5 Frecce
1,4 Km
Portici
1,6 Km
Pasticceria Gelateria Renzo
1,8 Km
Ristoranti Ristoranti
Agriturismo Giovanna Passeri
880 m
Hemingway
910 m
Osteria del Bacco
1,0 Km
La Tavola di Cherubino
1,3 Km
Pizzeria Jasmine
1,5 Km
Mostra tutto

Caratteristiche

Rif.:
61145232
Piano:
2 (Piano medio)
Posti auto:
1
Balconi:
1
Camere da letto:
2
Arredamento:
Assente
Mostra tutto
Prezzo Prezzo
€ 160.000
Rata mutuo Rata mutuo
€ 754 / mese
Proponi il tuo prezzoProponi il tuo prezzo

Classe Energetica

C
C
C
C
C
C
C
C
C
EP invernale del fabbricato:
EP estiva del fabbricato:
Anno di costruzione:
1993
Riscaldamento:
Autonomo
Tipo impianto:
Ad aria
Tipo alimentazione:
Aria

Ti interessa visionare l'immobile?

Fissa un appuntamento  Fissa un appuntamento

Richiedi informazioni

Clicca su Leggi per aprire l'informativa
* Questi campi sono obbligatori

Calcola il tuo mutuo

Semplice e senza impegno
Anticipo

( % )
Mutuo

( % )

pochi semplici passi

inserisci i tuoi dati
Questionario completato
Grazie per aver richiesto un appuntamento senza impegno con un nostro Consulente del Credito e Assicurativo.

Hai inserito correttamente tutti i dati necessari e a breve riceverai una e-mail con un link da convalidare per inviare i tuoi dati.
Affiliato
Ares Srl
Via Mameli, 2 23880 Casatenovo (LC)

Il nostro staff


  • Angelo Antonio Spreafico
    Affiliato

  • Alessia Campana
    Coordinatrice

  • Tatiana Mastrangelo
    Coordinatrice

  • Prisca Antonietta Pedulla'
    Collaboratrice
Via Mameli, 2 23880 Casatenovo (LC)
Zona: Casatenovo
Mostra su mappa
Orari: Lunedi-Venerdì 9.00-12.30 14.30-20.00 Sabato 9.00-12.30 14.30-17.30
Affiliato
Ares Srl
Via Mameli, 2 23880 Casatenovo (LC)

2025 Tecnocasa Franchising S.p.A. - P. IVA 08365160152 - Via Monte Bianco 60/A 20089 Rozzano (MI). Ogni agenzia ha un proprio titolare ed è autonoma. Privacy policy | Policy utilizzo | Cookie policy