Trilocale in vendita

Casatenovo, Via Don Carlo Gnocchi - Monteregio
€ 165.000
3 locali 3 locali
85 Mq 85 Mq
1 bagno 1 bagno

Trilocale in vendita

Casatenovo, Via Don Carlo Gnocchi - Monteregio

Descrizione annuncio

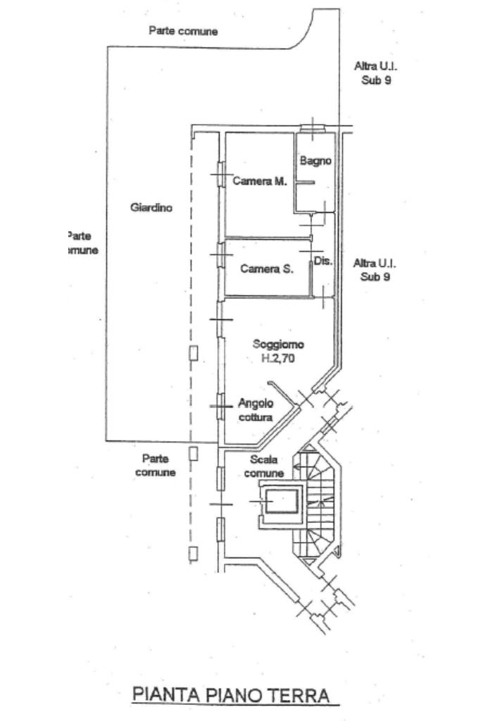
In zona Bennet, proponiamo in vendita un trilocale, di 85 mq/ca, al piano terra di un piccolo contesto condominiale.

L'ingresso si apre sulla zona giorno, caratterizzata da una cucina open space con vista sul soggiorno, ideale per chi ama cucinare e intrattenere gli ospiti in un ambiente conviviale.

Il corridoio unisce la zona giorno alla zona notte, composta da una camera matrimoniale, una cameretta ed un bagno finestrato.

L'immobile è servito da un piccolo giardino privato su due lati. Completano l'abitazione un box singolo ed una cantina.

I serramenti sono in legno doppio vetro, le persiane sono in legno. E' inoltre presente l'aria condizionata nella zona giorno. Le finiture sono in ceramica per il soggiorno e il servizio mentre nelle camere è presente il parquet.

Questa soluzione abitativa rappresenta un'opportunità interessante per chi cerca una casa funzionale e ben posizionata, in una zona che offre tranquillità e comodità.

La nostra agenzia immobiliare si occupa di immobili in vendita e in affitto nel comune di Casatenovo, vicina a Monticello Brianza, Missaglia, Besana e Lesmo.

Offriamo a tutti i nostri clienti una prima consulenza creditizia, con possibilità di avere prodotti adatti alle vostre esigenze. Questa casa ti piace, ma ne hai una da vendere? Non preoccuparti! Contatta il nostro ufficio e ti spiegheremo come fare senza rischi.

Mostra tutto

Nelle vicinanze

Trasporto pubblico Trasporto pubblico
Besana
Besana
1,6 Km
Trasporto pubblico
890 m
Via Monte Grappa - Via Monteverdi (Monticello Brianza)
Via Monte Grappa - Via Monteverdi (Monticello Brianza)
930 m
Ricariche auto elettriche Ricariche auto elettriche
Bennet Casatenovo | BECHARGE
180 m
Scuole Scuole
Scuole
720 m
IISS Alessandro Greppi
740 m
Scuola elementare
740 m
Scuola Primaria Don Carlo Gnocchi
800 m
Scuola secondaria Aldo Moro
850 m
Farmacia Farmacia
Farmacia
750 m
Farmacia Consonni
1,6 Km
Farmacia Schiavi dottor Enos
2,6 Km
Farmacia Comunale
2,7 Km
Ospedali Ospedali
Ospedali
320 m
Supermercati Supermercati
Bennet
130 m
CONAD
880 m
MD
1,4 Km
LD Market Casatenovo
1,5 Km
Iperal Besana Brianza
1,8 Km
Negozi Negozi
Fantasie di pane
1,2 Km
Negozi
2,9 Km
Bar Bar
Bar Guzzetti
780 m
Bar Gelateria 5 Frecce
840 m
Bar Canarino
1,0 Km
Portici
1,2 Km
Pasticceria Gelateria Renzo
2,3 Km
Ristoranti Ristoranti
La Tavola di Cherubino
1,1 Km
Osteria della Posa
1,2 Km
Il Cortile dei Sapori
1,2 Km
Hemingway
1,3 Km
Osteria del Bacco
1,5 Km
Mostra tutto

Caratteristiche

Rif.:
61176297
Piano:
Terra di 3 con ascensore
Totale piani:
3
Box:
1
Camere da letto:
2
Arredamento:
Assente
Mostra tutto
Prezzo Prezzo
€ 165.000
Rata mutuo Rata mutuo
€ 778 / mese
Spese annue Spese annue
€ 1.300
Proponi il tuo prezzoProponi il tuo prezzo

Classe Energetica

G
G
G
G
G
G
G
G
G
EP invernale del fabbricato:
EP estiva del fabbricato:
Anno di costruzione:
2005
Riscaldamento:
Autonomo
Tipo impianto:
A radiatori
Tipo alimentazione:
Metano

Ti interessa visionare l'immobile?

Fissa un appuntamento  Fissa un appuntamento

Richiedi informazioni

Clicca su Leggi per aprire l'informativa
* Questi campi sono obbligatori

Calcola il tuo mutuo

Semplice e senza impegno
Anticipo

( % )
Mutuo

( % )

pochi semplici passi

inserisci i tuoi dati
Questionario completato
Grazie per aver richiesto un appuntamento senza impegno con un nostro Consulente del Credito e Assicurativo.

Hai inserito correttamente tutti i dati necessari e a breve riceverai una e-mail con un link da convalidare per inviare i tuoi dati.
Affiliato
Ares Srl
Via Mameli, 2 23880 Casatenovo (LC)

Il nostro staff


  • Angelo Antonio Spreafico
    Affiliato

  • Alessia Campana
    Coordinatrice

  • Tatiana Mastrangelo
    Coordinatrice
Via Mameli, 2 23880 Casatenovo (LC)
Zona: Casatenovo
Mostra su mappa
Orari: Lunedi-Venerdì 9.00-12.30 14.30-20.00 Sabato 9.00-12.30 14.30-17.30
Affiliato
Ares Srl
Via Mameli, 2 23880 Casatenovo (LC)

2026 Tecnocasa Franchising S.p.A. - P. IVA 08365160152 - Via Monte Bianco 60/A 20089 Rozzano (MI). Ogni agenzia ha un proprio titolare ed è autonoma. Privacy policy | Policy utilizzo | Cookie policy